Trevor Law Chartered Surveyor and Estate Agent

Incorporating

Incorporating Brian-Wilson.co.uk

2 No. Sites at Glasdrummond Road

Aughnacloy, Tyrone, BT69 6DE

POA

Sale Agreed Building Site

Description


BUILDING SITES WITH PLANNING PERMISSION FOR A REPLACEMENT DWELLING AND A MODERN, FOUR BED FAMILY HOME

WE ARE DELIGHTED TO PRESENT TO THE MARKET, THESE BEAUTIFULLY SITUATED SITES SETTLED WITHIN THE AUGHNACLOY COUNTRYSIDE. THESE LEVEL, CIRCA 0.5 ACRE SITES HAVE FULL PLANNING PERMISSION FOR A RENOVATED DWELLING AND A NEW, MODERN, FOUR BEDROOM HOME RESPECTIVELY. THE SITES EXTEND TO THE REAR OF THE PROPOSED DWELLINGS, ALLOWING PLENTY OF SPACE FOR GARDENS OR PADDOCKS. THE PLOTS MAKE FULL USE OF THEIR RURAL LOCATION WITH VIEWS OVER THE SURROUNDING COUNTRYSIDE, BUT REMAIN WELL CONNECTED WITH AUGHNACLOY TOWN JUST 5 MINUTES DRIVE AWAY AND DUNGANNON JUST OVER 15 MINUTES AWAY.

 

THE PLANS FOR SITE 1 ALLOW FOR;

·         THREE WELL-PROPORTIONED BEDROOMS

·         2 X FAMILY BATHROOMS

·         LIVING ROOM

·         KITCHEN / DINING ROOM

·         UTILITY ROOM

·         W/C

 

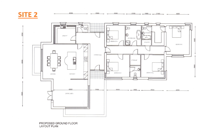
THE PLANS FOR SITE 2 ALLOW FOR;

·         FOUR WELL-PROPORTIONED BEDROOMS (2 X WITH ENSUITE)

·         MASTER SUITE WITH DRESSING ROOM AND ENSUITE

·         LIVING ROOM

·         OPEN PLAN KICHEN / LIVING / DINING AREA

·         UTILITY ROOM

·         FAMILY BATHROOM AND W/C

 

 

GOOGLE MAPS CO-ORDINATES: 54.438621,-6.905041


N.B. – Any photographs displayed or attached to brochures may have been taken with a wide angled lens.  Trevor Law Ltd have not tested any equipment, apparatus, fittings or services and cannot verify that these are in working order.

Valuations – Should you be considering the sale of your own property we would be pleased to arrange through our office a Free Valuation and advice on selling without obligation.