Trevor Law Chartered Surveyor and Estate Agent

Incorporating

Incorporating Brian-Wilson.co.uk

44d Glencrew Road

Aughnacloy, Tyrone, BT69 6EX

POA

Sale Agreed Detached 4 Bedrooms 2 Bathrooms 2 Receptions

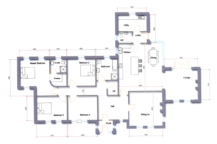
Description


STUNNING CIAT DESIGNED NEW BUILD PROPERTY WITH TURN-KEY FINISH

 

WE ARE DELIGHTED TO WELCOME TO THE MARKET, THIS NEW BUILD, CIAT DESIGNED PROPERTY. LOCATED JUST 2 KM OUTSIDE THE POPULAR BORDER TOWN OF AUGHNACLOY, THIS PROPERTY IS THE IDEAL COMBINATION OF RURAL IDYLL AND ACCESSIBILITY. THE PROPERTY IS FINISHED TO AN EXEMPLARY STANDARD, BOTH INTERNALLY AND EXTERNALLY AND WITH A FULL TURN-KEY FINISH AND GENEROUS PC SUM ALLOWANCE FOR FIXTURES AND FITTINGS, THIS IS THE PERFECT OPPORTUNITY FOR THOSE IN SEARCH OF STRESS-FREE LUXURY.


Internally, the property enjoys a modern yet flexible open plan layout. A spacious and welcoming hallway leads to a cosy sitting room with fireplace. Also following on from the central hallway is the open plan kitchen and dining area with floor to ceiling corner glazing overlooking the garden. The Kitchen leads through to a separate utility room as well as a lounge area with French doors leading to the rear garden. 

The generous living area gives way to the well-proportioned sleeping quarters which feature four generous double bedrooms and a beautifully finished main bathroom with bath and separate shower. The master bedroom features dual aspect windows as well as a contemporary ensuite and dressing area. This is a stunning new build property and with a generous PC Sum allowance, will be finished to the exacting tastes of the prospective buyer.




Key Features

·        Modern and flexible open plan layout
·        Four double bedrooms with master en-suite
·        £20,000 PC Sum Allowance
·        Peaceful rural location

Comprises


N.B. – Any photographs displayed or attached to brochures may have been taken with a wide angled lens.  Trevor Law Ltd have not tested any equipment, apparatus, fittings or services and cannot verify that these are in working order.

 

Valuations – Should you be considering the sale of your own property we would be pleased to arrange through our office a Free Valuation and advice on selling without obligation.